Коттеджный поселок по Симферопольскому шоссе
Офис продаж: Пн.- Вс. 10:00 - 18.00
г.Москва, Лубянский проезд, д. 15/2, подъезд 4, офис 304
Sberbank
Заказать звонок
Спасибо! Ваше сообщение отправлено.
Пожалуйста, заполните обязательные поля.
Имя *:

Телефон *:

Удобное для разговора время *:



Общая стоимость объекта – 13 616 500 рублей

Стоимость дома – 9 700 000 рублей
Стоимость участка 26,11 сотки – 3 916 500 рублей

Двухэтажный дом с верандой и вторым светом 

Профилированный брус 190 мм 

Общая площадь дома: 198 м2
Высота потолков 1 этажа – 2,85 м 
Высота потолков 2 этажа – 3,00 м 

Планировочные решения

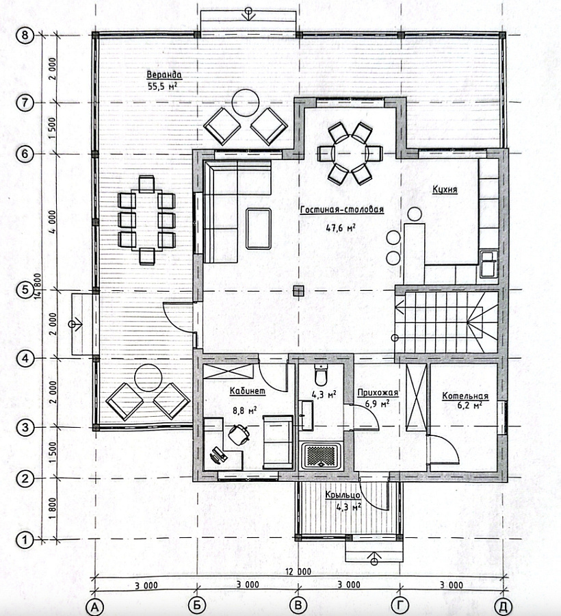
Дом построен в самом уединенном, тихом и уютном месте поселка, граничащим с лесным массивом. Дом сориентирован таким образом, что большая открытая летняя веранда (55 м2) с выходом через гостиную, смотрит в глубину участка. Размер веранды, снимает вопрос о строительстве беседки, поскольку веранда полностью заменяет последнюю. С веранды открывается вид на лесной массив.. Для защиты от осадков, крыша дома вынесена над верандой на 2,5 метра.

Основной вход в дом находится со стороны подъездной дороги и реализован через большое крыльцо.

Все помещения в доме раздельные, за исключением Гостиной-столовой, объединенной с Кухней. 

Объединенные Гостиная-Столовая (35м2) и Кухня (9,2 м2) дают существенный визуальный простор внутреннего пространства, усиленный наличием второго света (10м2) с внутренним балконом 2-го этажа.  Также на 1-м этаже имеется просторная прихожая, объединяющая выходы из котельной, санузла и гостиной.  Прихожая предполагает установку большого шкафа-купе. 

Спальных комнат на 1-м этаже – одна (9,2м2), которая может быть использована как гостевая спальня, либо спальня для пожилых родителей, либо- как кабинет. 

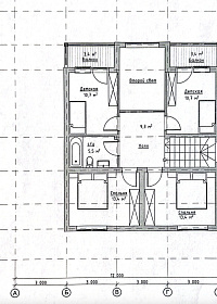
Спальных на 2-м этаже четыре. Две детские по 9,2 м2 и две взрослые по 14,2 м2.  Каждая спальня имеет отдельный выход в холл (9,8м2). Холл заканчивается вторым светом (10м2). При необходимости, вместо второго света, легко устроить пятую спальню или помещение с иным функционалом. Например, кабинет, маленькая обсерватория и т.д.

Санузлов в доме два.  Санузел 1-го этажа(4,3м2) предполагает размещение душевой кабины, унитаза, раковины и стиральной машины. Санузел 2-го этажа(5м2) -ванную, душевую кабину, биде, унитаз и раковину. 

Топочная (6,6м2) устроена как отдельное помещение. Вход в топочную из прихожей. Площадь топочной, при условии использования настенного котла, позволяет так же разместить в ней стиральную машину и гладильно-сушильный комплект оборудования.

Удобная двух-маршевая междуэтажная лестница, ведущая на 2-й этаж, расположена  в отдельном пространстве, смежном с гостиной, между кухней и котельной. Даже самая простая отделка лестницы украсит интерьер гостиной.

Фундамент 

под домом  выполнен ленточный, монолитный, железобетонный,  Под летнюю террасу и входную группу – железобетонные столбы на сваях. 

Стены

Материал стен и перегородок:  

Стены выполнены из профилированного бруса , сечением 190x140 мм.  Порода древесины – хвойные, сосна. Тип соединения угловых сопряжений брусьев - в чашку.

Вертикальное крепление венцов осуществлено деревянными нагелями и местами резьбовыми шпильками d12 мм. Между венцами и в чашках проложен рулонный утеплитель толщиной 15 мм, плотностью 200.

Конструктивное решение дома предполагает свободную планировку. При этом, перегородки предполагаются каркасные, отделка которых может быть разнообразной: блокхауз, имитация бруса, ГКЛ+покраска, ГКЛ+обои т.д.

Балки перекрытия пола 1-го этажа – брус 100x200 мм, доска 50x200 мм смонтированы с шагом не более 600  мм. Сечения балок рассчитаны исходя из нормативно-полезной нагрузки на перекрытие 200 кг/м2. По верхнему обрезу балок во всех помещениях 1-го этажа  уложен ходовой настил из обрезной доски сечением 25x100 мм, в дальнейшем используемый на черновой пол.

Балки междуэтажного  перекрытия – брус 100x200 мм, доска 50x200 мм смонтированы с межосевым шагом не более 600  мм. Сечения балок рассчитаны исходя из нормативно-полезной нагрузки на перекрытие 200 кг/м2. По верхнему обрезу балок во всех помещениях 2-го этажа  уложен ходовой настил из обрезной доски сечением 25x100 мм, в дальнейшем используемый на черновой потолок.

В оконных и дверных проемах установлена «окосячка» из Т-образного деревянного профиля сечением 100x200 мм. Примыкание профиля к стене выполнено через утеплитель холлофайбер.

Антисептическая обработка произведена в следующих элементах конструкций стен:
Обвязочный брус, окосячки, балки перекрытия фундамента и междуэтажного перекрытия и каркасы перегородок. Обработка осуществляется Неомид -430ЭКО

Междуэтажная лестница – черновой вариант, выполнена из доски 50x200 мм. 

Кровля

Стропильная система – сечение стропильных ног 50x200 мм. Межосевой шаг установки стропил не более 600мм.Обрешетка шаговая из доски 25x100 мм, контр. обрешетка из бруса 50x50 мм. Все указанные элементы конструкций обработаны Неомид -430ЭКО.
Гидроветрозащита – Изоспан АМ. Металлочерепица  - Полиэстер.  

Окна

В оконных проемах этажей устанавливаются  пластиковые двухкамерные  стеклопакеты с наружным ламинированием.  Двухкамерный стеклопакет (4-10-4-10-4).  

Смотреть все коттеджи на Симферопольском шоссе

  • Электричество 15 кВт

    Электричество

  • Три озера

    Три своих озера (пляжи, рыбалка)

  • Резервный генератор

    Резервный генератор

  • Свой лесной массив

    Свой лесной массив, относящийся к территории посёлка

  • Магистральное газоснабжение

    Магистральный газ

  • Спортивная площадка

    Спортивные площадки

  • Центральный водопровод

    Центральный водопровод

  • Детская площадка

    Детские площадки

  • Центральная канализация

    Центральная канализация

  • ж/д станция

    800 метров от ж/д станции

  • 89 км от МКАД

    89 км от МКАД по Симферопольскому шоссе

  • Минимаркет

    Минимаркет

13 616 500 руб. *

* - все коммуникации
входят в стоимость земли

Ипотека

Площадь участка: 26,11 соток

Площадь дома: 198 м 2


Перезвоните мне

  • План первого этажа

    План первого этажа
  • План второго этажа

    План второго этажа

Специальные предложения по покупке:

  • Рассрочка до 1 года. 6 месяцев без процентов, далее 2% ежемесячно на остаток долга. Рассрочка платежа на больший срок обсуждается индивидуально в московском офисе продаж
  • Cпециальные условия ипотечного кредитования в ОАО «Сбербанк России» (оперативность рассмотрения заявки, справка по форме банка, низкие процентные ставки, длительный срок кредитования (до 20 лет)

Коммуникации:

  • Все коммуникации входят в стоимость земли.

Комплексная безопасность:

  • Возможно подключение вашего дома к системе комплексной безопасности и оповещения КСИТАЛ-GSM. Вся "тревожная" информация с датчиков (объема, задымления и пр.) в вашем доме будет попадать на пульт центрального наблюдения дежурной службы поселка и дублироваться посредством SMS на ваши контактные телефоны.
Отправить заявку
По новому Симферопольскому шоссе 80 км от МКАД (трасса М2 или E-105 Москва-Тула). После моста через Оку через 2 км поворот направо на п.Заокский. Далее ехать по главной дороге до Яковлево. В Яковлево поворот направо под указатель «Романовские Дачи». Дорога до нашего поселка заасфальтирована, следуйте указателям.
В среднем, путь до ворот поселка по Симферопольскому шоссе из Москвы занимает около одного часа.
С Курского вокзала на электричке следуйте до остановки «Романовские дачи». Перейдите железнодорожные пути и, следуя указателям, поверните в сторону березовой рощи. От станции 10-15 минут пешком.
Время в пути до нашего поселка пройдет незаметно, так как дорога идет через живописную березовую рощу.
ПОСМОТРЕТЬ ПРЕДЛОЖЕНИЕ РД3-133
Готовый коттедж на участке:
РД3-133
5 950 000 руб.

Площадь участка: 11,96 соток
Площадь дома: 133,9 м2

ПОСМОТРЕТЬ ПРЕДЛОЖЕНИЕ РД3-126
Готовый коттедж на участке:
РД3-126
8 052 200 руб.

Площадь участка: 11,94 соток
Площадь дома: 132 м2

ПОСМОТРЕТЬ ПРЕДЛОЖЕНИЕ РД1-353
Готовый коттедж на участке:
РД1-353
8 100 000 руб.

Площадь участка: 12,48 соток
Площадь дома: 125,06 м2

ПОСМОТРЕТЬ ПРЕДЛОЖЕНИЕ РД3-163
Готовый коттедж на участке:
РД3-163
8 300 000 руб.

Площадь участка: 13,02 соток
Площадь дома: 170 м2

ПОСМОТРЕТЬ ПРЕДЛОЖЕНИЕ РД3-200
Готовый коттедж на участке:
РД3-200
8 556 100 руб.

Площадь участка: 11,97 соток
Площадь дома: 142 м2

ПОСМОТРЕТЬ ПРЕДЛОЖЕНИЕ РД3-176, 177
Готовый коттедж на участке:
РД3-176, 177
9 133 500 руб.

Площадь участка: 17,95 соток
Площадь дома: 170 м2

ПОСМОТРЕТЬ ПРЕДЛОЖЕНИЕ РД3-34
Готовый коттедж на участке:
РД3-34
9 232 600 руб.

Площадь участка: 11,02 соток
Площадь дома: 170 м2

ПОСМОТРЕТЬ ПРЕДЛОЖЕНИЕ РД3-9
Готовый коттедж на участке:
РД3-9
10 060 000 руб.

Площадь участка: 12 соток
Площадь дома: 198 м2

ПОСМОТРЕТЬ ПРЕДЛОЖЕНИЕ РД5-217
Готовый коттедж на участке:
РД5-217
13 616 500 руб.

Площадь участка: 26,11 соток
Площадь дома: 198 м2

ПОСМОТРЕТЬ ПРЕДЛОЖЕНИЕ РД1-358
Готовый коттедж на участке:
РД1-358
14 000 000 руб.

Площадь участка: 12,48 соток
Площадь дома: 229,16 м2

ПОСМОТРЕТЬ ПРЕДЛОЖЕНИЕ РД3-48
Готовый коттедж на участке:
РД3-48
14 096 400 руб.

Площадь участка: 12,28 соток
Площадь дома: 142 м2

ПОСМОТРЕТЬ ПРЕДЛОЖЕНИЕ РД3-157
Готовый коттедж на участке:
РД3-157
14 572 200 руб.

Площадь участка: 11,97 соток
Площадь дома: 142 м2

ПОСМОТРЕТЬ ПРЕДЛОЖЕНИЕ РД3-157
Готовый коттедж на участке:
РД3-157
14 572 200 руб.

Площадь участка: 11,97 соток
Площадь дома: 142 м2

Романовские дачи ДНП «Романовские дачи»
Заокский р-н, с. Яковлево, территория ДНП «Романовские дачи» 301002 Россия, Тульская область
+7 (495) 021-18-60 office@rdachi.ru
  • ✔ 450 домов заселены
  • ✔ 800 метров от ж/д станции
  • ✔ Три своих озера (пляжи, рыбалка)
  • ✔ Минимаркет
  • ✔ Спортивные площадки
  • ✔ Детские площадки
  • ✔ Своя станция по очистке водопроводной воды, питьевая вода прямо из крана
  • ✔ Асфальт
  • ✔ Магистральный газ
  • ✔ Центральный водопровод
  • ✔ Центральная канализация
  • ✔ 15 кВт
  • ✔ Резервный генератор
  • ✔ Свой лесной массив относящийся к территории посёлка