Коттеджный поселок по Симферопольскому шоссе
Офис продаж: Пн.- Вс. 10:00 - 18.00
г.Москва, Лубянский проезд, д. 15/2, подъезд 4, офис 304
Sberbank
Заказать звонок
Спасибо! Ваше сообщение отправлено.
Пожалуйста, заполните обязательные поля.
Имя *:

Телефон *:

Удобное для разговора время *:



Общая цена объекта недвижимости 14 572 200 рублей 

Из них:

Земельный участок площадью 11,97 * 130 000 (за сотку) = 1 556 100 рублей + 397 кв.м * 130 000 (за сотку) = 516 100 рублей.
ИТОГО цена за землю 2 072 200 рублей 

Дом 12 500 000 рублей  


Дом сделан под ключ. Заезжайте и живите! 


Очень уютный дом, общей площадью 142 м2, идеально подходит для данного участка 11,2 соток.  Функциональная планировка продумана до мелочей, что позволяет сделать  площадь дома максимально удобной для проживания. 

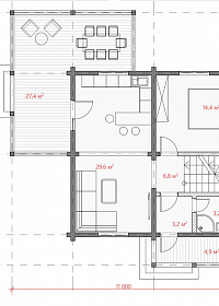
На первом этаже расположена гостевая спальня 14,4 м2, санузел 3,2 м2 под душевую кабину, унитаз и раковину, совмещенная кухня-гостиная 29,6 м2, из которой есть выход на открытую террасу 27,4 м2, с которой открывается вид на основную часть участка, ориентированную на солнечную сторону, лестничный холл 4,5 м2 с удобной двух-маршевой лестницей, прихожая 3,2 м2, примыкающая к входному крыльцу, основной вход в дом расположен на сторону дороги. 

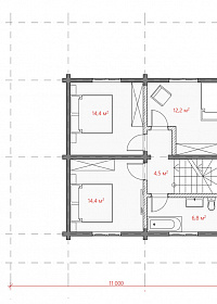
На втором этаже – спальная зона из трех комнат 14,4 м2, 14,4 м2, 12,2 м2, лестничный холл 4,5 м2, санузел 6,8 м2 под ванну, унитаз, раковину и стиральную машину. 

В доме продумано все самое необходимое для спокойной и комфортной жизни. 

Площади помещений дома 

Общая площадь дома 142 м2

Помещения первого этажа: 

  • входной тамбур - 3,2 м2
  • санузел - 3,2 м2
  • лестничный холл - 6,8 м2 
  • гостевая спальня - 14,4 м2 
  • гостиная-кухня - 29,6 м2 
  • терраса - 27,4 м2 

Помещения второго этажа: 

  • Спальня 1 - 14,4 м2
  • Спальня 2 - 14,4 м2
  • Спальня 3 - 12,2 м2
  • Лестничный холл 4,5 м2
  • Санузел 6,8 м2

Технические характеристики дома 

Фундамент  

Выполнен ленточным, монолитным, железобетонным под летнюю террасу и входную группу – железобетонные столбы на сваях.

Стены 

Профилированный брус, евро-профиль, камерной сушки, сечением 140х190 мм. Между венцами бруса и в чашках проложен утеплитель Политерм, толщиной 15 мм. Вертикальное крепление венцов выполнено с шагом 1,5-2 м березовыми нагелями 25 мм. 
Перегородки каркасные из обрезной доски 50х120 мм. Балки пола и потолка в доме выполнены из бруса сечением 100х200. 
Балки пола летней террасы и входной группы – доска сечением 50х200 мм. Столбы террасы и входной группы из строганного бруса сечением 195х195 мм. 
Обсада оконных и дверных проемов под стеклопакеты из Т-профиля сечением 100х200 мм.

Кровля 

Стропильная система выполнена из доски сечением 50х200 мм. Контробрешетка – брусок 50х50 мм. Шаговая обрешетка – доска 25х100 мм. Подкровельная гидроизоляционная ветрозащитная паропроницаемая мембрана Изоспан-АМ. Утепление кровли толщиной 200 мм. Примененный утеплитель Технониколь. Кровельное покрытие – металлочерепица GL. Подбой карнизов кровли, потолков террасы и входной группы исполнен из вагонки. 

Покраска фасадов  

Стены, столбы, карнизы кровли, потолки террасы и входной группы выкрашены краской Boritex, наносимой в три слоя (один слой базовый + два финишных слоя). 

Окна 

Двухкамерный стеклопакет, пятикамерный профиль REHAU 70 мм, цветное ламинирование с наружной стороны. 

Инженерные системы 

Уличные инж.системы: септик Топаз + Центральный водопровод + Газ (подключение в стоимость не входит) + воздушный ввод электричества от столба к дому

Септик ТОПАС-8 Пр 

Количество пользователей: 8 
Производительность: 1,5 м3/сутки 
Залповый сброс: 440 л 
Глубина залегания трубы: 35-85 см 
Потребляемая электроэнергия: 1,2-1,6 кВт*сут 
Вес: 345 кг 
Габариты (Д / Ш / В): 1,56 / 1,17 / 2,4  

Установки «ТОПАС-8 Пр» характеризуются повышенным (до 98 %) уровнем очистки стоков, что отвечает действующим нормам и правилам. Локальная автономная канализация является одним из наиболее удобных и современных очистных сооружений для частного дома. Это система, которая обеспечивает безопасное, надежное и экологически чистое решение проблемы очистки сточных бытовых вод. Модель «ТОПАС-8 Пр» работает по принципу аэрации. На выходе установки получается вода, не имеющая запаха. Она подходит для использования в технических целях. Система отличается компактными габаритами, поэтому ее можно установить даже на маленьком участке.

Базовые преимущества ТОПАС 8 Пр 

Простота обслуживания: нет необходимости вызывать ассенизационную машину, покупать культуры специальных бактерий и т.д. Полная безопасность в экологическом плане. Повышенная долговечность: время службы составляет более 50 лет. Высокая (до 98 %) степень очистки стоков. Прочный, легкий, компактный корпус, который выполнен из качественного полипропилена и оснащен ребрами жесткости. На выходе получается техническая чистая вода и стабилизированный ил. Отсутствие неприятного запаха на участке.  

Описание внутренних систем 

Отопление

Система отопления на базе стальных панельных радиаторов. 

Подключение каждого прибора индивидуальное, отдельной линией подачи о братки в распределительные коллекторы в тепловой узел. 

Подключение отопительных приборов скрытое нижнее из (пола).   

Трубопроводы подключения отопительных приборов из сшитого полиэтилена PEXa, по схеме – без соединений в скрытых полостях. 

Утепление трубным утеплителем Энергофлекс.

Метод подключения трубопроводов к регулирующим вентилям отопительных приборов и коллектору через фитинги с накидной гайкой и уплотнение типа евроконус с муфтой аксиальной запрессовки.

Распределительный коллектор отопительных приборов из нержавеющей стали расположен в тепловом пункте. 

Трубопроводы обвязки теплового пункта из нержавеющей стали в утеплителе. 

Трубопроводы подключения газового котла к тепловому пункту из нержавеющей стали.

Источник теплоснабжения – электрокотел на 9 Квт, после установки газового котла (осуществлена подготовка с выводом трубопроводов и запорных кранов в помещение кухни из теплового пункта), электрический возможно использовать как резервный, на случай неисправности газового. 

В дополнении к Электрокотлу в компактном тепловом пункте под лестницей установлен водонагреватель на 50 литров, который можно использовать как основной, а после установки газового котла как резервный или дополнительный нагреватель для приготовления горячей воды. 

Система управления отопительной системой / котлом дистанционная, через интернет. 

Водоснабжение  

Ввод холодной воды с греющим кабелем расположен в тепловом пункте.

Система горячего и холодного водоснабжения последовательная. 

Трубопроводы из сшитого полиэтилена PEXa с фитингами аксиальной запрессовки.   

Утепление трубным утеплителем Энергофлекс. 

Выводы выполнены для санузла первого этажа на 3 прибора, душевая кабина, умывальник, унитаз. В санузле второго этажа Ванна, умывальник, унитаз. В зоне кухне под мойкой + отводы на стиральную машину в кухне с возможностью подключения и холодной и горячей воды. 

Канализация 

Выведены точки водоотвода для теплового пункта 1 точка, санузла первого этажа на 3 прибора, душевая кабина, умывальник, унитаз. В санузле второго этажа Ванна, умывальник, унитаз. В зоне кухне под мойкой. 

Электрика

Установлены: Выключатели + розетки + светильники точечные в потолках кухни, прихожей и санузлов. Люстры потолочные не входят.

Система электроснабжения дома выполнена скрыто. Прокладка кабелей номинального сечения по нагрузкам для розеточных линий и линий освещения проложены скрыто в безразрывных трубах из нержавеющей стали для максимальной защиты от повреждений и безопасной эксплуатации всей системы электроснабжения. 

Распределительный щит с автоматическими выключателями и устройствами защиты расположен при входе в дом.   

Розеточная линия – масштабируемая с возможностью добавления точек. 

Выполнена подготовка под установку ТВ. 

Выполнен контур защитного заземления.  

Отделка внутренняя 

  • Полы-ламинат
  • Стены, перегородки, лестница, двери, наличники  -покраска ЛКМ BIOFA
  • Окна-подоконники пластиковые + наличники деревянные + откосы пластиковые
  • Двери – филенчатые, деревянные + наличники деревянные + доборы
  • Потолки – натяжные PREMIUM Mat + закладные для потолочных люстр
  • Санузлы – панели пластиковые
  • Дверь входная – утепленная стальная
  • Лестница межэтажная – деревянная 

Отделка уличная 

  • Веранда + крыльцо + балконы  – полы ДПК- Террасная доска, потолки из вагонки
  • Ограждения ДПК – перила + балясины + столбы
  • Уличные светильники на входном крыльце и веранде 
  • Покраска дома с уличной стороны включает в себя покраску стен, карнизов, наличников, потолков террасы, крыльца и балкона. Схема покраски: 1-й слой – базовый (био-защита), 2 и 3-й слои – отделочные (декоративная функция + защита от ультрафиолета). Примененные ЛКМ Боритекс. 

Смотреть все коттеджи на Симферопольском шоссе

Остались вопросы? Оставьте заявку, и наш менеджер свяжется с вами для консультации.

Спасибо! Ваше сообщение отправлено.
Пожалуйста, заполните обязательные поля.
  • Электричество 15 кВт

    Электричество

  • Три озера

    Три своих озера (пляжи, рыбалка)

  • Резервный генератор

    Резервный генератор

  • Свой лесной массив

    Свой лесной массив, относящийся к территории посёлка

  • Магистральное газоснабжение

    Магистральный газ

  • Спортивная площадка

    Спортивные площадки

  • Центральный водопровод

    Центральный водопровод

  • Детская площадка

    Детские площадки

  • Центральная канализация

    Центральная канализация

  • ж/д станция

    800 метров от ж/д станции

  • 89 км от МКАД

    89 км от МКАД по Симферопольскому шоссе

  • Минимаркет

    Минимаркет

14 572 200 руб. *

Купить в рассрочку

Дом доступен в рассрочку!

Доступен в ипотеку

* - все коммуникации
входят в стоимость земли

Ипотека

Площадь участка: 11,97 соток

Площадь дома: 142 м 2


Перезвоните мне

  • План первого этажа

    План первого этажа
  • План второго этажа

    План второго этажа

Специальные предложения по покупке:

  • Рассрочка до 1 года. 6 месяцев без процентов, далее 2% ежемесячно на остаток долга. Рассрочка платежа на больший срок обсуждается индивидуально в московском офисе продаж
  • Cпециальные условия ипотечного кредитования в ОАО «Сбербанк России» (оперативность рассмотрения заявки, справка по форме банка, низкие процентные ставки, длительный срок кредитования (до 20 лет)

Коммуникации:

  • Все коммуникации входят в стоимость земли.

Комплексная безопасность:

  • Возможно подключение вашего дома к системе комплексной безопасности и оповещения КСИТАЛ-GSM. Вся "тревожная" информация с датчиков (объема, задымления и пр.) в вашем доме будет попадать на пульт центрального наблюдения дежурной службы поселка и дублироваться посредством SMS на ваши контактные телефоны.
Отправить заявку
По новому Симферопольскому шоссе 80 км от МКАД (трасса М2 или E-105 Москва-Тула). После моста через Оку через 2 км поворот направо на п.Заокский. Далее ехать по главной дороге до Яковлево. В Яковлево поворот направо под указатель «Романовские Дачи». Дорога до нашего поселка заасфальтирована, следуйте указателям.
В среднем, путь до ворот поселка по Симферопольскому шоссе из Москвы занимает около одного часа.
С Курского вокзала на электричке следуйте до остановки «Романовские дачи». Перейдите железнодорожные пути и, следуя указателям, поверните в сторону березовой рощи. От станции 10-15 минут пешком.
Время в пути до нашего поселка пройдет незаметно, так как дорога идет через живописную березовую рощу.
ПОСМОТРЕТЬ ПРЕДЛОЖЕНИЕ РД3-133
Готовый коттедж на участке:
РД3-133
6 900 000 руб.

Площадь участка: 11,96 соток
Площадь дома: 133,9 м2

ПОСМОТРЕТЬ ПРЕДЛОЖЕНИЕ РД3-126
Готовый коттедж на участке:
РД3-126
8 052 200 руб.

Площадь участка: 11,94 соток
Площадь дома: 132 м2

ПОСМОТРЕТЬ ПРЕДЛОЖЕНИЕ РД1-353
Готовый коттедж на участке:
РД1-353
8 100 000 руб.

Площадь участка: 12,48 соток
Площадь дома: 125,06 м2

ПОСМОТРЕТЬ ПРЕДЛОЖЕНИЕ РД3-163
Готовый коттедж на участке:
РД3-163
8 300 000 руб.

Площадь участка: 13,02 соток
Площадь дома: 170 м2

ПОСМОТРЕТЬ ПРЕДЛОЖЕНИЕ РД3-200
Готовый коттедж на участке:
РД3-200
8 556 100 руб.

Площадь участка: 11,97 соток
Площадь дома: 142 м2

ПОСМОТРЕТЬ ПРЕДЛОЖЕНИЕ РД3-176, 177
Готовый коттедж на участке:
РД3-176, 177
9 133 500 руб.

Площадь участка: 17,95 соток
Площадь дома: 170 м2

ПОСМОТРЕТЬ ПРЕДЛОЖЕНИЕ РД3-34
Готовый коттедж на участке:
РД3-34
9 232 600 руб.

Площадь участка: 11,02 соток
Площадь дома: 170 м2

ПОСМОТРЕТЬ ПРЕДЛОЖЕНИЕ РД3-9
Готовый коттедж на участке:
РД3-9
10 060 000 руб.

Площадь участка: 12 соток
Площадь дома: 198 м2

ПОСМОТРЕТЬ ПРЕДЛОЖЕНИЕ РД5-217
Готовый коттедж на участке:
РД5-217
13 616 500 руб.

Площадь участка: 26,11 соток
Площадь дома: 198 м2

ПОСМОТРЕТЬ ПРЕДЛОЖЕНИЕ РД1-358
Готовый коттедж на участке:
РД1-358
14 000 000 руб.

Площадь участка: 12,48 соток
Площадь дома: 229,16 м2

ПОСМОТРЕТЬ ПРЕДЛОЖЕНИЕ РД3-48
Готовый коттедж на участке:
РД3-48
14 096 400 руб.

Площадь участка: 12,28 соток
Площадь дома: 142 м2

ПОСМОТРЕТЬ ПРЕДЛОЖЕНИЕ РД3-157
Готовый коттедж на участке:
РД3-157
14 572 200 руб.

Площадь участка: 11,97 соток
Площадь дома: 142 м2

ПОСМОТРЕТЬ ПРЕДЛОЖЕНИЕ РД3-157
Готовый коттедж на участке:
РД3-157
14 572 200 руб.

Площадь участка: 11,97 соток
Площадь дома: 142 м2

Романовские дачи ДНП «Романовские дачи»
Заокский р-н, с. Яковлево, территория ДНП «Романовские дачи» 301002 Россия, Тульская область
+7 (495) 021-18-60 office@rdachi.ru
  • ✔ 450 домов заселены
  • ✔ 800 метров от ж/д станции
  • ✔ Три своих озера (пляжи, рыбалка)
  • ✔ Минимаркет
  • ✔ Спортивные площадки
  • ✔ Детские площадки
  • ✔ Своя станция по очистке водопроводной воды, питьевая вода прямо из крана
  • ✔ Асфальт
  • ✔ Магистральный газ
  • ✔ Центральный водопровод
  • ✔ Центральная канализация
  • ✔ 15 кВт
  • ✔ Резервный генератор
  • ✔ Свой лесной массив относящийся к территории посёлка