Коттеджный поселок по Симферопольскому шоссе
Офис продаж: Пн.- Вс. 10:00 - 18.00
г.Москва, Лубянский проезд, д. 15/2, подъезд 4, офис 304
Sberbank
Заказать звонок
Спасибо! Ваше сообщение отправлено.
Пожалуйста, заполните обязательные поля.
Имя *:

Телефон *:

Удобное для разговора время *:




Цена объекта 9 133 500 рублей
Стоимость дома  6 800 000 рублей
Земельный участок общей площадью 17,95 * 130 000 рублей за сотку = 2 333 500 рублей

Участок состоит из двух:
стоимость земельного участка РД-3-176 площадь 11,97 * 130 000 рублей за сотку = 1 556 100 рублей
стоимость земельного участка РД-3-177 площадь 5,98 * 130 000 рублей за сотку =  777 400 рублей

Описание дома 

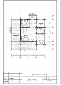
Компактный дом общей площадью 170 м² для круглогодичного проживания, идеально подходит для данного участка. Функциональная планировка продумана до мелочей, что позволяет сделать площадь дома максимально удобной для проживания.

На первом этаже расположены: кабинет 7,5 м², санузел 5 м² под ванную, душевую кабину, унитаз и раковину, совмещенная гостиная 27,5 м², из которой есть выход на открытую террасу 20,8 м², переходящую в крытую веранду 20,7 м², с которой открывается вид на основную часть участка, ориентированную на солнечную сторону, кухня 10,6 м², объединенная аркой с гостиной, котельная 7,3 м², прихожая 3,0 м², примыкающая к входному крыльцу, основной вход в дом расположен на дорогу.

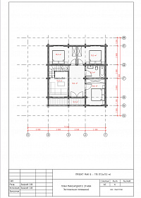
На втором – спальная зона из трех комнат 10,5 м², 10,5 м², 10,6 м², холл второго этажа 18 м² с выходом на балкон 5,3 м², санузел 5 м² под ванну, унитаз, раковину и стиральную машину.

В доме продумано все самое необходимое для спокойной и комфортной жизни.

Площади помещений дома 

Общая площадь дома 170 м² 

Помещения первого этажа: 

входной тамбур 3 м²
санузел 5 м²
кабинет 7,3 м²
гостиная 27,5 м²
открытая терраса 20,8 м²
крытая веранда 20,7м²

Помещения второго этажа:

спальня 1 10,5 м²
спальня 2 10,5 м²
спальня 3 10,6 м²
холл второго этажа 18 м²
санузел 5 м²

Технические характеристики дома

Фундамент

Фундамент под дом выполнен ленточным, монолитным, железобетонным под летнюю террасу и входную группу – железобетонные столбы на сваях. 

Стены

Оцилиндрованное бревно, сечением 200 мм. Между венцами бревен и в чашках проложен утеплитель Политерм толщиной 20 мм. Вертикальное крепление венцов выполнено с шагом 1,5-2 м березовыми нагелями 25 мм. 

Перегородки каркасные из обрезной доски 50х120 мм.
Балки пола и потолка в доме выполнены из бруса сечением 100х200. Балки пола летней террасы и входной группы – доска сечением 50х200 мм.
Настил пола временный, выполнен по балкам пола из доски сечением 25х100 мм, в дальнейшем используется на черновые полы и потолки. Столбы террас и входной группы из бревна сечением 200 мм.
Обсада оконных и дверных проемов под стеклопакеты из Т-профиля сечением 100х200 мм.  
Лестница межэтажная временная из доски сечением 50х200 мм. 

Кровля 

Стропильная система выполнена из доски сечением 50х200 мм. Контробрешетка – брусок 50х50 мм. Шаговая обрешетка – доска 25х100 мм.
Подкровельная гидроизоляционная ветрозащитная паропроницаемая мембрана Изоспан-АМ. Кровельное покрытие – металлочерепица GL. Подбой карнизов кровли, потолков террасы и входной группы исполнен из вагонки.  

Покраска фасадов 

Стены, столбы, карнизы кровли, потолки террасы и входной группы выкрашены краской Boritex, наносимой в три слоя (один слой базовый + два слоя финишных). 

Окна 

Двухкамерный стеклопакет, пятикамерный профиль REHAU 70 мм, цветное ламинирование с наружной стороны. 

Смотреть все коттеджи на Симферопольском шоссе

  • Электричество 15 кВт

    Электричество

  • Три озера

    Три своих озера (пляжи, рыбалка)

  • Резервный генератор

    Резервный генератор

  • Свой лесной массив

    Свой лесной массив, относящийся к территории посёлка

  • Магистральное газоснабжение

    Магистральный газ

  • Спортивная площадка

    Спортивные площадки

  • Центральный водопровод

    Центральный водопровод

  • Детская площадка

    Детские площадки

  • Центральная канализация

    Центральная канализация

  • ж/д станция

    800 метров от ж/д станции

  • 89 км от МКАД

    89 км от МКАД по Симферопольскому шоссе

  • Минимаркет

    Минимаркет

9 133 500 руб. *

* - все коммуникации
входят в стоимость земли

Ипотека

Площадь участка: 17,95 соток

Площадь дома: 170 м 2


Перезвоните мне

  • План первого этажа

    План первого этажа
  • План второго этажа

    План второго этажа

Специальные предложения по покупке:

  • Рассрочка до 1 года. 6 месяцев без процентов, далее 2% ежемесячно на остаток долга. Рассрочка платежа на больший срок обсуждается индивидуально в московском офисе продаж
  • Cпециальные условия ипотечного кредитования в ОАО «Сбербанк России» (оперативность рассмотрения заявки, справка по форме банка, низкие процентные ставки, длительный срок кредитования (до 20 лет)

Коммуникации:

  • Все коммуникации входят в стоимость земли.

Комплексная безопасность:

  • Возможно подключение вашего дома к системе комплексной безопасности и оповещения КСИТАЛ-GSM. Вся "тревожная" информация с датчиков (объема, задымления и пр.) в вашем доме будет попадать на пульт центрального наблюдения дежурной службы поселка и дублироваться посредством SMS на ваши контактные телефоны.
Отправить заявку
По новому Симферопольскому шоссе 80 км от МКАД (трасса М2 или E-105 Москва-Тула). После моста через Оку через 2 км поворот направо на п.Заокский. Далее ехать по главной дороге до Яковлево. В Яковлево поворот направо под указатель «Романовские Дачи». Дорога до нашего поселка заасфальтирована, следуйте указателям.
В среднем, путь до ворот поселка по Симферопольскому шоссе из Москвы занимает около одного часа.
С Курского вокзала на электричке следуйте до остановки «Романовские дачи». Перейдите железнодорожные пути и, следуя указателям, поверните в сторону березовой рощи. От станции 10-15 минут пешком.
Время в пути до нашего поселка пройдет незаметно, так как дорога идет через живописную березовую рощу.
ПОСМОТРЕТЬ ПРЕДЛОЖЕНИЕ РД3-133
Готовый коттедж на участке:
РД3-133
6 500 000 руб.

Площадь участка: 11,96 соток
Площадь дома: 133,9 м2

ПОСМОТРЕТЬ ПРЕДЛОЖЕНИЕ РД3-126
Готовый коттедж на участке:
РД3-126
8 052 200 руб.

Площадь участка: 11,94 соток
Площадь дома: 132 м2

ПОСМОТРЕТЬ ПРЕДЛОЖЕНИЕ РД1-353
Готовый коттедж на участке:
РД1-353
8 100 000 руб.

Площадь участка: 12,48 соток
Площадь дома: 125,06 м2

ПОСМОТРЕТЬ ПРЕДЛОЖЕНИЕ РД3-163
Готовый коттедж на участке:
РД3-163
8 300 000 руб.

Площадь участка: 13,02 соток
Площадь дома: 170 м2

ПОСМОТРЕТЬ ПРЕДЛОЖЕНИЕ РД3-200
Готовый коттедж на участке:
РД3-200
8 556 100 руб.

Площадь участка: 11,97 соток
Площадь дома: 142 м2

ПОСМОТРЕТЬ ПРЕДЛОЖЕНИЕ РД3-176, 177
Готовый коттедж на участке:
РД3-176, 177
9 133 500 руб.

Площадь участка: 17,95 соток
Площадь дома: 170 м2

ПОСМОТРЕТЬ ПРЕДЛОЖЕНИЕ РД3-34
Готовый коттедж на участке:
РД3-34
9 232 600 руб.

Площадь участка: 11,02 соток
Площадь дома: 170 м2

ПОСМОТРЕТЬ ПРЕДЛОЖЕНИЕ РД3-9
Готовый коттедж на участке:
РД3-9
10 060 000 руб.

Площадь участка: 12 соток
Площадь дома: 198 м2

ПОСМОТРЕТЬ ПРЕДЛОЖЕНИЕ РД5-217
Готовый коттедж на участке:
РД5-217
13 616 500 руб.

Площадь участка: 26,11 соток
Площадь дома: 198 м2

ПОСМОТРЕТЬ ПРЕДЛОЖЕНИЕ РД1-358
Готовый коттедж на участке:
РД1-358
14 000 000 руб.

Площадь участка: 12,48 соток
Площадь дома: 229,16 м2

ПОСМОТРЕТЬ ПРЕДЛОЖЕНИЕ РД3-48
Готовый коттедж на участке:
РД3-48
14 096 400 руб.

Площадь участка: 12,28 соток
Площадь дома: 142 м2

ПОСМОТРЕТЬ ПРЕДЛОЖЕНИЕ РД3-157
Готовый коттедж на участке:
РД3-157
14 572 200 руб.

Площадь участка: 11,97 соток
Площадь дома: 142 м2

ПОСМОТРЕТЬ ПРЕДЛОЖЕНИЕ РД3-157
Готовый коттедж на участке:
РД3-157
14 572 200 руб.

Площадь участка: 11,97 соток
Площадь дома: 142 м2

Романовские дачи ДНП «Романовские дачи»
Заокский р-н, с. Яковлево, территория ДНП «Романовские дачи» 301002 Россия, Тульская область
+7 (495) 021-18-60 office@rdachi.ru
  • ✔ 450 домов заселены
  • ✔ 800 метров от ж/д станции
  • ✔ Три своих озера (пляжи, рыбалка)
  • ✔ Минимаркет
  • ✔ Спортивные площадки
  • ✔ Детские площадки
  • ✔ Своя станция по очистке водопроводной воды, питьевая вода прямо из крана
  • ✔ Асфальт
  • ✔ Магистральный газ
  • ✔ Центральный водопровод
  • ✔ Центральная канализация
  • ✔ 15 кВт
  • ✔ Резервный генератор
  • ✔ Свой лесной массив относящийся к территории посёлка